107
1
3
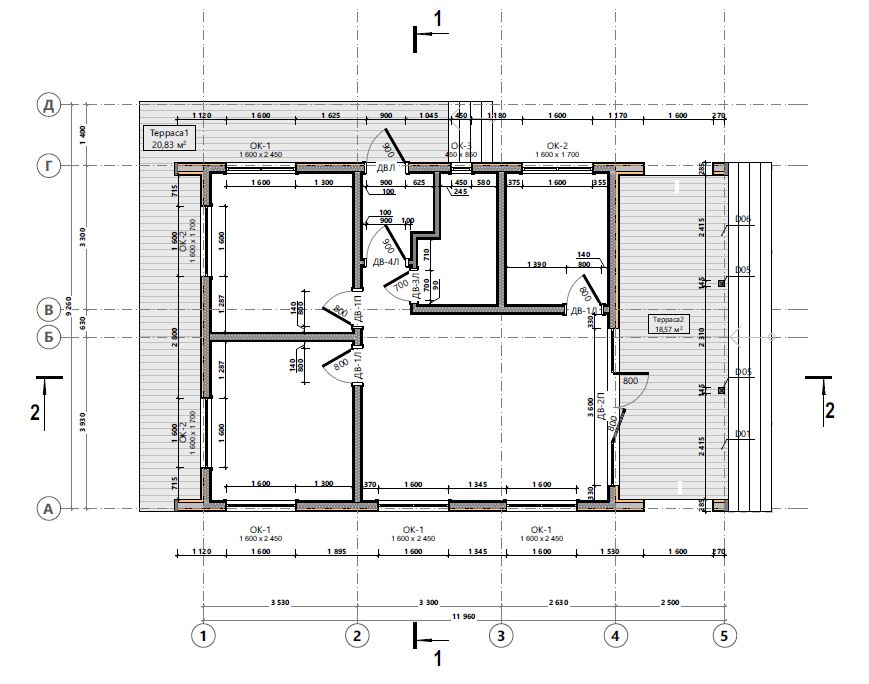
1Фундамент - 42 ж/б свай 200*200*5000мм. с оголовками
Конструктив несущих стен и внутренних перегородок – утеплитель ТЕХНОНИКОЛЬ, пароизоляционная пленка ТЕХНОНИКОЛЬ , ветровлагозащитная мембрана ТЕХНОНИКОЛЬ
Наружная отделка стен:
Система утепления:
- Паро-ветро-гидрозащитные пленки ТЕХНОНИКОЛЬ
- Окна и входная дверь - REHAU 70 мм. Двусторонняя ламинация: антрацитово-белый
– водоснабжение (скважина)
– канализация (септик)
– разводка труб для водяного отопления по всему дому
– отопление (тёплый пол в кухне-гостиной, прихожей и в санузле инфракрасного типа)– Канализация подключается к индивидуальному септику на участке;
– Водоснабжение от собственной скважины на участке;
– Электричество центральное;
– Стены в гостиной, гостевой– имитация бруса 12 мм, окрашенный в белый цвет
– Стены в спальнях – имитация бруса 12 мм, окрашенная в светло белый цвет
– Стены в санузлах - плитка
– Напольное покрытие - ламинат, в санузле - плитка
– Натяжной потолок белый матовый
– Межкомнатные двери белые, высота 2300 мм
– Установлены розетки, выключатели, приборы освещения
– Осветительные приборы (согласно дизайн-проекта)
167
1
2
3
486
2
6
7
200
2
2
3
200
1
2
3
127,4
1
2
3
324
1
2
3
